Eladó Ikerház Budapest XXII. kerület - Budafok kedvelt részén ÚJ Ikerház !

86 m2Alapterület 3 Szoba
142 900 000 Ft Ár
394688Azonosító
További adatok

300 m2 Telek

Kertre néző Kilátás

Új Állapot

Tégla Szerkezet

26 m2 Erkély/terasz

Hőszivattyú Fűtés

Összkomfort Komfort

Utcán, közterületen Parkolás

Kiváló Tömegközlekedés

Amerikai konyhás

Van Kertkapcsolat

2026 Építés éve

Hitelkalkuláció – a részletekért kattintson valamelyik bank logójára!

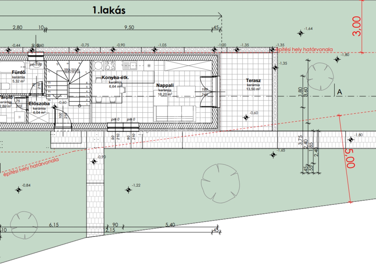
Eladásra kínálunk Budapest XXII. kerületében Budafokon 300 m2-es kerttel rendelkező belső kétszintes, dupla komfortos, nappali + 2 szobás, összesen 75 m2 nettó hasznos lakóterülettel rendelkező, új építésű ikerházat.

Elrendezés:

Földszint: nettó 41 m2 + terasz

• Nappali 18.2 m2
• Konyha - étkező 6.46 m2
• Előszoba 6.04 m2
• Fürdő - mosdó 5.27 m2
• Háztartási h. 5.32 m2
• Terasz 13,5 m2

Emelet: nettó 34 m2

• 2 szoba 12.6 m2, 10.44 m2
• Zuhanyzó + mosdó 2.75 m2
• Előszoba 2,15m2
• Lépcső 5,45 m2
• Tetőtéri terasz 13,5 m2

Kert:
• 300 m2

Műszaki paraméterek – szerkezeti leírás (részlet):
Beton sávalap. Tégla főfalak + 15 cm dryvit szigetelés.Tégla válaszfalak. Műanyag külső nyílászárók hőszigetelt üvegezéssel. Belső nyílászárók dekorfóliás ajtók. Cserép fedésű tető.

Fűtés: Az épület fűtését hőszivattyús rendszer látja el, minden helyiségben padlófűtés található.
Hideg-meleg burkolatok kiválaszthatók a műszaki leírásban rögzített árak szerint.

Tapasztalt - megbízható generál kivitelező munkájával készül a ház - referencia ingatlanjai megtekinthetőek!

Kiváló lokációval rendelkezik az ingatlan. A közelben található iskola – óvoda – bölcsőde – bevásárlóközpont.

Projekt átadás: 2026. november -december

Az ingatlant fiatal pároknak és családoknak egyaránt ajánljuk.

Amennyiben Önnek a vásárláshoz szüksége lenne hitelre egyedi kedvezménnyel,kezdeményezheti a kapcsolatfelvételt bankfüggetlen hitelügyintézőinkkel, teljesen DÍJMENTESEN.

Az ingatlan részletes ismertetése és bemutatása előre egyeztetett időpontban lehetséges, melyet nagyon rugalmasan kezelünk, akár HÉTVÉGÉN is.

Amennyiben felkeltette az érdeklődését, további kérdéseivel kapcsolatban várom jelentkezését!
Szekeres Ilona

Szekeres Ilona

Hívjon bizalommal

+36-30-978-Mutasd!

További hirdetéseim

Ingatlaniroda
GDN Ingatlanhálózat - Sweet Home Ingatlan

Küldjön üzenetet

Visszahívást kérek

Hasonló ingatlanok