Eladó Sorház Mogyoród - …

120 m2Alapterület 4 Szoba
130 000 000 Ft Ár
391931Azonosító
További adatok

265 m2 Telek

Udvari Kilátás

Új Állapot

Tégla Szerkezet

23 m2 Erkély/terasz

Hőszivattyú Fűtés

Dupla komfort Komfort

Saját beálló Parkolás

Közepes Tömegközlekedés

Amerikai konyhás

Van Kertkapcsolat

2026 Építés éve

Hitelkalkuláció – a részletekért kattintson valamelyik bank logójára!

Új építésű, magas minőségű lakások Mogyoródon, nyugodt környezetben.

Mogyoródon, Budapesttől rövid autóútra kínálok megvételre új építésű, kiemelkedő minőségben megvalósuló lakásokat. Az ingatlan csendes, rendezett környezetben található, modern, újszerű családi házak szomszédságában, ideális választás azok számára, akik a nyugalmat és az igényes kivitelezést keresik.

Ingatlan jellemzői:

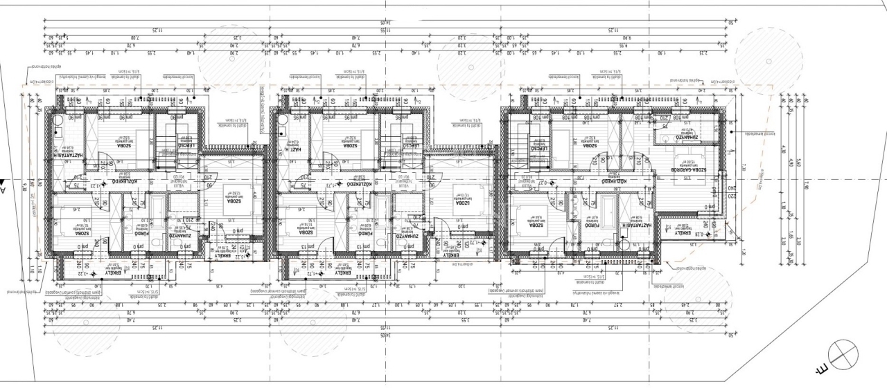
A 795 m²-es telken összesen három lakás kerül kialakításra, gondosan megtervezett elrendezéssel és korszerű műszaki tartalommal.

A 2. számú lakás nettó 104 m² alapterületű, jól átgondolt, kétszintes elrendezéssel.

A földszinten világos nappali–konyha–étkező található, külön mosdóval és WC-vel, valamint közvetlen kijárattal a teraszra.
Az emeleten három hálószoba, fürdőszoba, külön zuhanyzó és háztartási helyiség került kialakításra, kényelmes közlekedőkkel.

További területek:
• Fedett gépkocsi-beálló: 17,62 m²
• Erkélyek összesen: 9,46 m²
• Terasz: 12,87 m²

Átgondolt térszervezés, kényelmes családi élettér, nyugodt környezet.

Parkolás:
ingatlanonként két gépkocsi számára biztosított, ebből egy parkolóhely a ház előtti területen kialakítható.


Műszaki tartalom:

• Alapozás: beton, vasbeton sávalap

• Külső nyílászárók: HOFSTADTER márkájú, korszerű, hőhídmentes, 5 kamrás műanyag–alumínium profilrendszer, 3 rétegű hőszigetelő üvegezéssel. A nagy méretű erkélyajtók a tervek szerint tolóajtós kivitelűek, elektromos mozgatással.

• Homlokzat: letisztult, modern színvilágú megjelenés

• Hűtés–fűtés: korszerű hőszivattyús rendszer, hőcserélővel, helyiségenként egyedileg szabályozható fűtéssel

• Szellőztetés / légtechnika: beépített WOLF légtechnikai rendszer, amely ablaknyitás nélkül biztosít friss, portól és szennyeződésektől mentes levegőt, különösen a vizes helyiségekben

• Burkolatok: első osztályú, magas minőségű burkolatok minden helyiségben

• Kert: teljes tereprendezéssel és igényes kertkialakítással, a telek kerítéssel leválasztva

Tervezett átadás: 2026. év nyár közepe!

Ütemezés: 20% foglaló, a fennmaradó összeg megbeszélés alapján.

További lakások:

1. lakás nettó 121 m² alapterületű,
• Terasz: 15 m²
• Erkély + fellépő: 6 m²
Ára: 163.000.000 Ft

3. lakás nettó 116 m² alapterületű,
• Terasz: 13 m²
• Erkély + fellépő: 10 m²
Ára: 145.000.000 Ft

Irodánk 30 éves szakmai tapasztalattal áll ügyfelei rendelkezésére!
Bankfüggetlen hitelcentrummal, jogi hátérrel segítjük ingatlanvásárlását!
Várom szíves megkeresését, hívjon bizalommal!
Szekeres Ilona

Szekeres Ilona

Hívjon bizalommal

+36-30-978-Mutasd!

További hirdetéseim

Ingatlaniroda
GDN Ingatlanhálózat - Sweet Home Ingatlan

Küldjön üzenetet

Visszahívást kérek

Hasonló ingatlanok