Eladó Ikerház Budapest XXII. kerület - Egyszintes ikerház mindkét fele!

75 m2Alapterület 3 Szoba
106 000 000 Ft Ár
387777Azonosító
További adatok

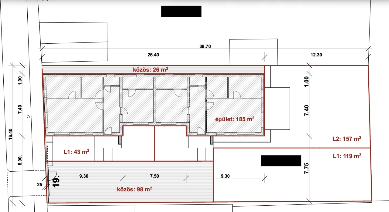
157 m2 Telek

Kertre néző Kilátás

Új Állapot

Tégla Szerkezet

19 m2 Erkély/terasz

Hőszivattyú Fűtés

Összkomfort Komfort

Saját beálló Parkolás

Tömegközlekedés

Amerikai konyhás

Van Kertkapcsolat

2025 Építés éve

Délkeleti Tájolás

Hitelkalkuláció – a részletekért kattintson valamelyik bank logójára!

MOST ÁRCSÖKKENÉSSEL MEGVÁSÁROLHATÓ ÚJÉPÍTÉSŰ IKERHÁZ!
NE HAGYJA KI, ÚJÉPÍTÉSŰ INGATLAN, SAJÁT KERTRÉSSZEL, EBBEN AZ ÁRBAN PÁRATLAN LEHETŐSÉG A KERÜLETBEN!

OTTHON START PROGRAM FELTÉTELINEK MEGFELELŐ, FIX 3%-OS, ÁLLAMI TÁMOGATÁSÚ LAKÁSHITELLEL MEGVÁSÁROLHATÓ INGATLAN!

EGYSZINTES ÚJ ÉPÍTÉSŰ IKERHÁZ DAIKIN ALTHERMA HŐSZIVATTYÚVAL!

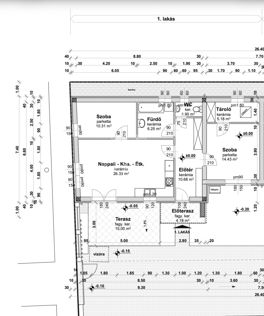
XXII. kerületben, Nagytétény, CSENDES KERTVÁROSI környezetében, nettó 75 m2-es, nappali + 2 szobás (teraszos), MODERN, ÚJ ÉPÍTÉSŰ, IKERHÁZAT kínálunk eladásra!

HELYISÉGEI FÖLDSZINTEN:
-előszoba(10,68m2), amerikai konyha nappali(26m2), 2 szoba(9,75m2, 14,43m2), fürdőszoba(6,25m2), WC(1,9m2), tároló(5,18m2), valamint 15 m2 és 3,89 m2-es terasz.

Az ingatlanhoz saját, kizárólagos használatú, lekerített TELEKRÉSZEK tartoznak.
Egy autóbeálló tartozik az ingatlanhoz, a kialakítását a vételár tartalmazza.
Az ingatlan telkén található egy fúrt kút.

Az épület: egyszintes (földszint)
Külső falazat: Leier 30 cm-es tégla, 10 cm-es Dryvit hőszigeteléssel.

Műanyag nyílászárok: FENSTHERM FUTURE vagy Kömmerling 5légkamrás, 76mm tokszélesség , 3rétegű üveg K=0,6 hőszigeteléssel.

Nagyon IGÉNYES KIVITELEZÉS, minőségi anyagok felhasználásával épül ( részletes Műszaki leírással és további anyagokkal rendelkezem.)

A fűtést és a melegvizet DAIKIN ALTHERMA HŐSZIVATTYÚ biztosítja padlófűtéssel, radiátorral kiépítve.

A vételár tartalmazza riasztó rendszer kiépítését, valamint kettő klíma kiállás kiépítését!

Külön mérőórák, szeparált telekrészek, különböző utcai bejáratok!

MÉRETEK, TÁJOLÁS, ELRENDEZÉS, AZ ALAPRAJZOKON.
( Belső átalakítás-kialakítás a Vevő igényei alapján megoldható )

KIVÁLÓ KÖZLEKEDÉSI LEHETŐSÉGEK, iskola, óvoda, bölcsőde, rendelő, Campona, Lidl, Aldi minden a közelben.

TERVEZETT ÁTADÁS: 2026. negyedik negyedév!

A vételár NEM tartalmazza a hideg-meleg burkolatokat, redőny lamellákat, szúnyoghálókat, beltéri ajtókat, riasztóberendezést, csaptelepeket, klímaberendezést, szaniterek árait!
A munkadíj minden esetben benne van az árban.

Megtekinthető elkészült REFERENCIA munkák, OTTHON START HITEL, CSOK PLUSZ, babaváró, kedvezményes HITELEK FELVEHETŐK!
(Szükség esetén ingyenes hitelügyintézéssel)

Az ingatlan megtekintése előre egyeztetett időpontban lehetséges, akár hétvégén is. Bővebb információkkal kapcsolatban várom jelentkezését, keressen bizalommal a hét minden napján!
Szekeres Ilona

Szekeres Ilona

Hívjon bizalommal

+36-30-978-Mutasd!

További hirdetéseim

Ingatlaniroda
GDN Ingatlanhálózat - Sweet Home Ingatlan

Küldjön üzenetet

Visszahívást kérek

Hasonló ingatlanok