Eladó Iroda Budapest XI. kerület - Vasút utca

34 m2Alapterület 1 Szoba
56 563 260 Ft Ár
392704Azonosító
További adatok

Utcai Kilátás

Új Állapot

Tégla Szerkezet

Házközponti egyedi mérővel Fűtés

Garázs/beálló vásárolható Parkolás

Emelet Földszint

Van Lift

Kiváló Tömegközlekedés

2025 Építés éve

Presztízs irodák Kelenföldön – az Etele Square projektben!

Most még széles a választék, de a legjobb adottságú irodák gyorsan gazdára találnak!

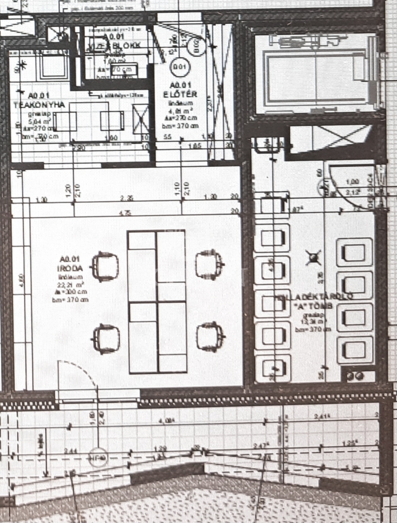
Az Etele Square újépítésű, 144 lakásos lakóparkjának földszintjén összesen 23 db modern irodahelyiség kerül értékesítésre, 1.204 m² összes hasznos alapterületen. A projekt ideális választás saját vállalkozás számára vagy befektetési céllal is.

Válassza ki az Önnek megfelelő méretet!

Az irodák négy fő alapterület-kategóriában érhetők el:

34–35 m²

46–49 m²

51–57 m²

59–64 m² – akár külön raktárhelyiséggel

Az irodák bruttó 1.651.000.- Ft/nm áron kerülnek értékesítésre!

Az alaprajzi kialakítás egységesen átgondolt és praktikus, a különbség az alapterületben rejlik – így könnyen tervezhető és berendezhető minden egység.

Funkcionális, azonnal használható kialakítás

✔ Bejárat a belső főfolyosóról
✔ Teraszajtó fedett árkádsorra
✔ Saját előtér
✔ Külön vizesblokk
✔ Teakonyha minden irodában
✔ Nagyobb méretnél külön raktár

A helyiségek modern vinyl padlóburkolattal, a vizesblokkok és teakonyhák minőségi greslap hidegburkolattal készülnek – időtálló, esztétikus kivitelben.

Kiváló lokáció – erős üzleti potenciál

!FONTOS, hogy minden iroda albetétként és tulajdoni hányaddal szerepel az alapító okiratban!

Lokáció:
Az Etele Square, Kelenföld dinamikusan fejlődő részén, Budapest XI. kerületében található, közvetlen közel a Kelenföldi pályaudvar közlekedési csomóponthoz.

Vasút, metró, villamos és busz – ügyfelei és munkatársai gyorsan és kényelmesen megközelíthetik irodáját akár a belvárosból, akár az agglomerációból.

A 144 lakásos társasház és a környező lakóingatlanok stabil, fizetőképes ügyfélkört biztosítanak, a földszinti elhelyezkedés pedig kiváló láthatóságot és könnyű megközelíthetőséget nyújt.

- Választható tájolás

- Kelenföldi útra néző irodák

- Vasút utcára néző irodák

- Zöldterületre tekintő, különálló iroda

Miért éri meg most dönteni?

✔ Újépítésű, modern környezet
✔ Kiemelkedő közlekedési kapcsolatok
✔ Lakópark + üzleti funkció = folyamatos ügyfélforgalom
✔ Értékálló befektetés
✔ Még elérhető teljes méretválaszték

Ne maradjon le a legjobb adottságú irodákról!

Válassza ki most vállalkozása jövőbeli helyszínét az Etele Square földszintjén.
Szekeres Ilona

Szekeres Ilona

Hívjon bizalommal

+36-30-978-Mutasd!

További hirdetéseim

Ingatlaniroda
GDN Ingatlanhálózat - Sweet Home Ingatlan

Küldjön üzenetet

Visszahívást kérek

Hasonló ingatlanok