Eladó Lakás (panel) Budapest XIX. kerület - Zrínyi utca

53 m2Alapterület 1 + 2 Szoba
66 900 000 Ft Ár
394595Azonosító
További adatok

Kertre néző Kilátás

Felújított Állapot

Panel Szerkezet

Távfűtés Fűtés

Összkomfort Komfort

Utcán, közterületen Parkolás

Emelet 6

Van Lift

Tömegközlekedés

Nem Amerikai konyhás

Nincs Kertkapcsolat

1980 Építés éve

Közös költség 20 500 Ft

Hitelkalkuláció – a részletekért kattintson valamelyik bank logójára!

Első lakás a XIX. kerületben – ideális választás az Otthon Start Programhoz

Megvételre kínálok a XIX. kerületben, a Zrínyi utcában egy 53 m²-es, 2 + 1 félszobás, tehermentes panellakást. Az ingatlan azonnal költözhető állapotban van, így kiváló lehetőség első lakást keresőknek vagy fiatal pároknak.

A lakás egy 10 emeletes, liftes, rendezett társasház 6. emeletén található. A környék csendes, parkos, mégis jól megközelíthető, így ideális választás azok számára, akik nyugodt, de városi környezetben szeretnének élni.

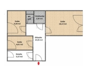
Elrendezés – jól alakítható terek
A 2 + 1 félszobás kialakítás rugalmasan alkalmazkodik az élethelyzethez:

a nappali tágas közösségi térként funkcionál,
a félszoba kényelmes hálószobának ideális,
a harmadik szoba használható dolgozószobának, gyerekszobának vagy gardróbnak.

Helyiségek:

előszoba (5,8 m²)
konyha
közlekedő (4,1 m²)
külön fürdőszoba és WC
hálószoba (9,3 m²)
nappali (18,3 m²)

Műszaki állapot
Az ingatlan az elmúlt években több felújításon esett át:

2022-ben műanyag, több rétegű üvegezésű nyílászárók kerültek beépítésre,
szintén 2022-ben megtörtént a hidegburkolatok cseréje a folyosón, konyhában, fürdőben és WC-ben,
új radiátorok biztosítják az egyenletes hőleadást,
a nappaliban hűtő-fűtő klíma található,
2025 novemberében tisztasági festés történt.

A lakás azonnali felújítás nélkül birtokba vehető.

Költségek és finanszírozás
A közös költség 20.500 Ft/hó, amely tartalmazza a takarítást, a felújítási alapot és a lift felújításának törlesztését is.
Az ingatlan tehermentes, banki hitellel is megvásárolható.

Környék és ellátottság
A közelben minden fontos szolgáltatás elérhető: bevásárlási lehetőségek, gyógyszertár, orvosi rendelő, oktatási intézmények, valamint sportolási és kikapcsolódási lehetőségek.

Közlekedés

3 perc sétára az 50-es villamos, amely kapcsolatot biztosít a Határ úti M3-as metróhoz,
3 perc sétára több buszjárat (93, 93A, 136),
a belváros, Deák Ferenc tér körülbelül 36 perc alatt elérhető,
a parkolás a környéken díjmentes.

Sport és kikapcsolódás
A közelben új konditerem található, valamint az utca végén reformer pilates stúdió is elérhető.

Ez a lakás kiváló választás mindazok számára, akik egy jól elrendezett, azonnal költözhető otthont keresnek jó közlekedéssel és teljes infrastruktúrával rendelkező környezetben.
Szekeres Ilona

Szekeres Ilona

Hívjon bizalommal

+36-30-978-Mutasd!

További hirdetéseim

Ingatlaniroda
GDN Ingatlanhálózat - Sweet Home Ingatlan

Küldjön üzenetet

Visszahívást kérek

Hasonló ingatlanok