Eladó Családi ház Berkenye - csendes, panorámás részen

114 m2Alapterület 3 + 2 Szoba
121 500 000 Ft Ár
394388Azonosító
További adatok

1651 m2 Telek

Panoráma Kilátás

Új Állapot

Tégla Szerkezet

28 m2 Erkély/terasz

Hőszivattyú Fűtés

Dupla komfort Komfort

Saját beálló Parkolás

Tömegközlekedés

Amerikai konyhás

Van Kertkapcsolat

2026 Építés éve

Délnyugati Tájolás

Hitelkalkuláció – a részletekért kattintson valamelyik bank logójára!

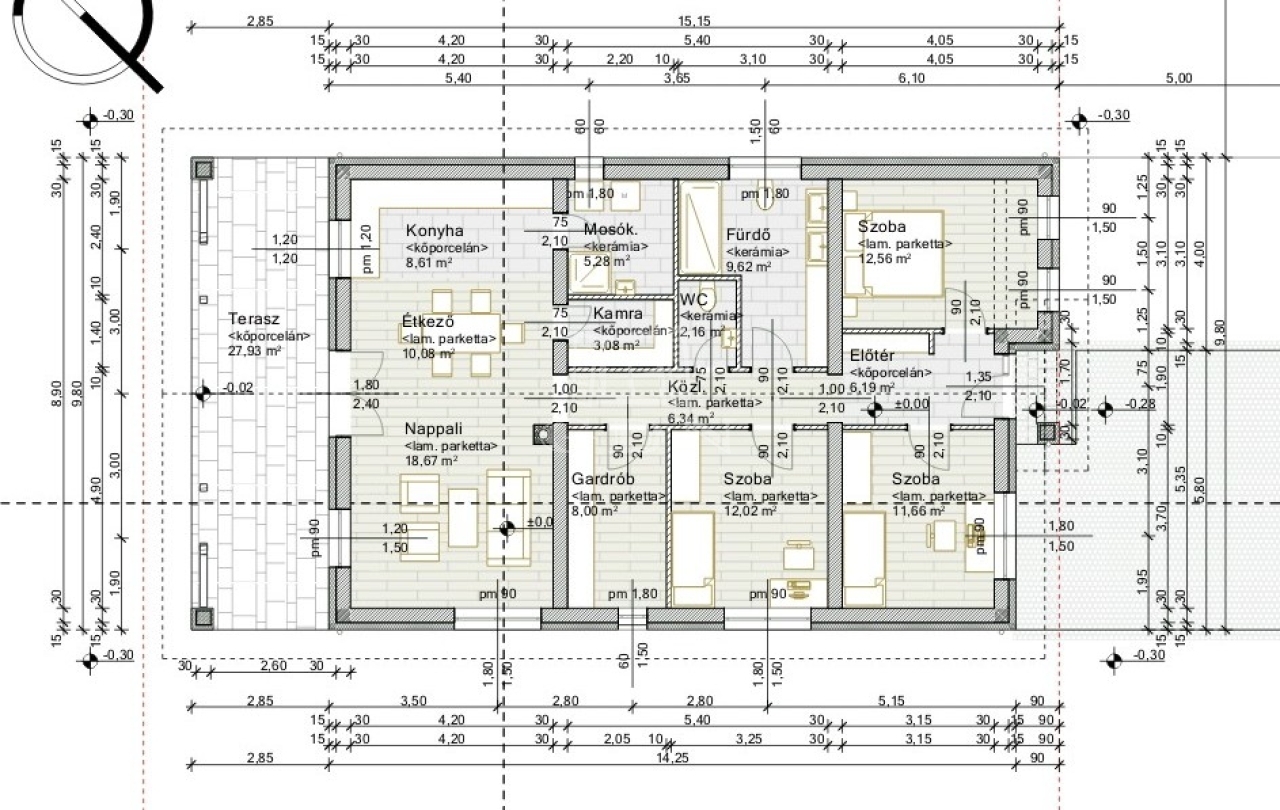
Berkenye csendes, PANORÁMÁS részén eladó 1651 nm-es telken, 2026-ban épült, nettó 114 nm-es (+28 nm-es fedett terasz) családi ház!

Műszaki jellemzői:
-szerkezete 30-as Porotherm tégla + 15 cm-es grafitos szigetelés
- tető Terrán beton cserép fedésű
- 3 rétegű üvegezéssel műanyag nyílászárók
- látszó fagerendás fafödém, rajta 30 cm-es kőzetgyapot
- a fűtés ECO PV hőszivattyúval (energiahatékony-környezettudatos) megoldott, padlófűtéssel
- a nappaliban épített kémény található, mely lehetőséget biztosít a későbbiekben cserépkályha vagy kandalló beüzemelésére,
- elektromos hálózat 3 x 25 Amperes, "okosórás"
- napelemes rendszer kiállása kiépítésre kerül
-épület szellőztetését egy hővisszanyerős szellőztetési rendszer
biztosítja igény esetén
- H tarifás klímának kiállás a nappaliban és a szobákban.

Ami még választható:
- hidegburkolatok 8500 ft/nm melegburkolatok 6500 ft/nm árig (efelett feláras)
-szaniterek, csaptelepek,
- igény szerint fürdőkádas vagy zuhanyzós fürdő is kialakítható
- beltéri ajtók tokkal, kilinccsel 50.000 ft-ig (efelett feláras)
- a kerítés, kapu, térkövezés, autónak fedett beálló kialakítása szintén feláras.

Az ingatlan jelenleg 60%-os készültségi fokban van, a teljes kivitelezésre további 3 hónap szükséges.

A kivitelező referencia munkákkal is rendelkezik a ház közelében, igény esetén megtekinthetőek.

Kinek ajánlom? Aki egy közkedvelt településen, jó laköközösségben élne, egy új, igényesen kivitelezett családi házban. Aki értékeli a hatalmas telket, és a ház természetközeli elhelyezkedését. A közelben túraútvonalak tömkelege, és számtalan látványosság várja az odaköltözőket. Pl. Hársas-tó, Nógrád vára, nógrádi vadaspark, nőtincsi Szent István tó, Gyadai tanösvény, Csóványosi-kilátó

Sétatávolságra található a 331-es busz (Vác és Rétság között közlekedik) megállója és az S750-es Vác és Diósjenő között közlekedő vonat állomása.


A vásárlást INGYENES hitel tanácsadással, előminősítéssel segítjük. CSOK Plusz- Otthon Start ügyintézés! 16 pénzintézet lehetőségeit vázolja ügyintézőnk, és versenyezteti is őket, hogy Ön a legkedvezőbb ajánlatot kapja.
Szekeres Ilona

Szekeres Ilona

Hívjon bizalommal

+36-30-978-Mutasd!

További hirdetéseim

Ingatlaniroda
GDN Ingatlanhálózat - Sweet Home Ingatlan

Küldjön üzenetet

Visszahívást kérek

Hasonló ingatlanok